La Fondazione Reggio Children Centro Loris Malaguzzi ha affidato a Ecosistema Urbano, un gruppo di architetti e urbanisti, con sede a Madrid, il completamento del progetto culturale della scuola comunale d'infanzia e primaria all'interno del Centro Internazionale Loris Malaguzzi di Reggio Emilia. L'operazione è stata curata dallo studio viapiranesi di Milano, società di consulenza strategica per l'architettura e il design,
L'affidamento è arrivato al termine di un concorso internazionale al quale hanno partecipato, con i loro progetti, altri sei studi internazionali, in maggioranza composti da giovani progettisti: 70°N arkitektur, Francesco Librizzi (che ha ricevuto una menzione d'onore e sarà coinvolto nella progettazione degli interni), Giancarlo Mazzanti, Carlo Ratti Associati, Raumlabor e ZPZ Partners.

Centro Internazionale Loris Malaguzzi. Photo © Scuole e Nidi d'infanzia Reggio Emilia
La giuria, presieduta dall'architetto Luca Molinari, professore di Storia dell'Architettura contemporanea presso la Facoltà di Architettura "Luigi Vanvitelli" di Napoli si è avvalsa delle competenze tecniche di Claudia Giudici, cda di Reggio Children srl, Joseph Grima, direttore di Domus, Massimo Magnani, direttore Area Pianificazione Strategica Comune di Reggio Emilia, Maddalena Tedeschi, pedagogista Scuola dell'Infanzia al Centro Internazionale Loris Malaguzzi.

Hall Centrale del Centro Internazionale Loris Malaguzzi. Photo © Scuole e Nidi d'infanzia Reggio Emilia
Un Work in progress
I sette architetti, provenienti da vari Paesi (Italia, Germania, Colombia, Norvegia, Spagna) hanno sviluppato i loro concept partecipando a un workshop di natura tecnico scientifica a Reggio Emilia, volto a favorire l'incontro con il contesto cittadino e l'esperienza educativa dei nidi e delle scuole dell'infanzia, la conoscenza del Centro Internazionale e della scuola oggetto dell'ampliamento.

70°N arkitektur

Francesco Librizzi
Le proposte elaborate da ciascun concorrente sono state valutate da una Commissione tecnica mista costituita da architetti e pedagogiste, che ha scelto la proposta progettuale ritenuta più adeguata rispetto alle linee guida elaborate e illustrate nel bando di concorso. La Fondazione Reggio Children - Centro Loris Malaguzzi ha affidato al vincitore, Ecosistema Urbano (Madrid), l'esecuzione del progetto definitivo, che dovrà essere consegnato entro la primavera 2013, quando la Fondazione lo donerà all'Istituzione Scuole e Nidi d'Infanzia del Comune di Reggio Emilia.

Giancarlo Mazzanti

Carlo Ratti Associati
Lo sviluppo del progetto definitivo sta avvenendo attraverso un processo partecipato che coinvolge genitori, insegnanti, atelieristi, pedagogisti della scuola al Centro Internazionale Loris Malaguzzi e personale di Reggio Children.

Raumlabor

ZPZ Partners
Nell'estate 2013 l'Istituzione Scuole e Nidi d'infanzia del Comune di Reggio Emilia, affiderà, con gara d'appalto, l'esecuzione dei lavori per la realizzazione dell'ampliamento della scuola. La fase di workshop e la seguente fase di progetto sono state rese possibili grazie al contributo di CCPL e IREN rinnovabili SpA e alla collaborazione di Studio Alfa. L'investimento complessivo a carico del Comune di Reggio Emilia è di 1.000.000 di euro.
Il Centro Internazionale Loris Malaguzzi
Il Centro, dove si trova la scuola dell'Infanzia e la scuola primaria destinata all'ampliamento, inaugurato a Reggio Emilia nel febbraio 2006 e completato nel 2011, è un luogo dedicato all'incontro di quanti, in Italia e nel mondo, intendono innovare educazione e cultura. Un grande spazio che produce ricerca, innovazione e sperimentazione sui contenuti e sui processi educativi nei diversi ambiti del sapere.

Planimetria Centro Internazionale Loris Malaguzzi
Il Centro sorge laddove una volta c'erano i magazzini della Locatelli, acquistati nel 1998 dal Comune di Reggio e destinati a diventare elemento catalizzatore e simbolo della trasformazione della zona nord della città.
Al Centro Internazionale Loris Malaguzzi si trovano, oltre alla Scuola dell'Infanzia e alle prime tre classi della Scuola primaria, i nuovi Atelier Urbani, L'Atelier Raggio di Luce, la sala Mostre Marco Gerra, il Laboratorio Teatrale G. Rodari e il Centro Video, il Centro Documentazione e Ricerca Educativa dei Nidi e delle Scuole Comunali dell'Infanzia di Reggio Emilia, l'Auditorium Annamaria e Marco Gerra, lo Spazio Ricerca e Innovazione e gli spazi dedicati al cibo di Pause - Atelier dei Sapori (caffetteria, ristorante, bookfood shop).
Il progetto di Ecosistema Urbano
La scelta della giuria
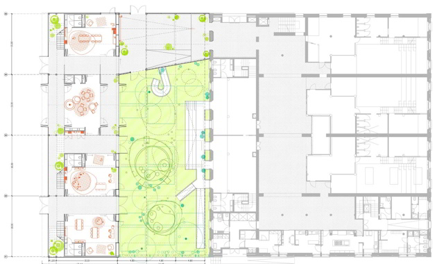
La scelta del progetto di Ecosistema Urbano nasce dall'aver proposto «un volume molto ben organizzato. Interessante - si legge nel verbale - il concept che prolunga idealmente le linee dell'edificio esistente, conferendo forza e interazione dialettica con esso. Il nuovo edificio si mette in continuità con quello esistente, aprendo al centro un giardino comune delimitato dai due volumi, dando vita a un nuovo involucro all'interno nel quale si dispongono in modo dinamico e flessibile le aule, sviluppate in verticale su più piani orizzontali e gli spazi comunitari».

Progetto di Ecosistema Urbano
Un laboratorio di pedagogie sperimentali
«La scuola atelier è una macchina scenica dove i fruitori sono i protagonisti di una storia in costante evoluzione - spiegano gli architetti - sono contemporaneamente gli attori e coloro che mettono in moto la scena all'interno di uno spazio che diventa laboratorio attivo dove si impara dal fare».
Nella scuola atelier tutti gli ambienti sono ampliabili e trasformabili e includono zone intermedie libere da un uso predefinito, che creano situazioni spaziali sempre diverse e insolite, allo stesso momento totalmente flessibili e in costante mutamento. Il comportamento bioclimatico dell'edificio svolge un ruolo fondamentale all'interno del processo educativo dei suoi fruitori, coinvolgendo gli stessi ad intervenire attivamente nelle trasformazioni stagionali dell'involucro edilizio. «Le tecnologie impiegate - dicono gli architetti - si integrano con un design dell'edificio che si adatta alle condizioni climatiche e per primo sfrutta tecniche passive di controllo ambientale per minimizzare il consumo energetico».

Planimetria di progetto
Scuola come percorso unitario
Lo scopo della consultazione sottende all'ipotesi di una scuola unitaria che crea la sua identità a partire da due esperienze, la scuola dell'infanzia comunale e la scuola primaria statale, per produrre idee e pratiche condivise di insegnamento/apprendimento, progettazione, organizzazione, partecipazione delle famiglie, documentazione.
Una scuola che progetta percorsi didattici ed educativi in dialogo tra bambini-ragazzi, genitori, insegnanti, atelieristi, pedagogisti, cuoche e ausiliari che, avvalendosi delle loro diverse competenze e saperi, creano un'interazione sinergica e interdisciplinare che si relaziona con la cultura del Centro Internazionale. Una scuola "cantiere" di idee, testimonianze e punti di vista.
Sezione trasversale
Scuola come spazio del possibile
Uno spazio multiculturale che preveda una "geografia della prossimità", capace di dar forma al luogo dove si producono l'incontro, il dialogo, lo scambio e la partecipazione di tutti i soggetti che abitano la scuola, ognuno portatore della propria cultura. Una scuola capace di testimoniare una "complessità morbida", che favorisca relazioni e partecipazione, aiuti a tessere biografie, a costruire spazi di narrazione, di confronto, di discussione, di elaborazione, ma che contempli spazi di possibile privacy.
Scuola come luogo di vita
Una scuola come "atelier diffuso" dove i linguaggi del fare e del pensare si coniugano. Una scuola consapevole, sensibile, attiva all'epistemologia del conoscere, al contempo operativa e riflessiva, che tende a promuovere processi creativi e divergenti, a sollecitare domande, più che a indicare contenuti e risposte. Una scuola trasformativa, cioè capace di mettersi in gioco in relazione ai nuovi contesti sociali, agli stili di vita, alle dimensioni simboliche e ai linguaggi che appartengono alle nuove generazioni.
Ecosistema urbano
Belinda Tato e Jose Luis Vallejo sono i partner fondatori di Ecosistema Urbano nel 2000. Il team dello studio è composto da professionisti provenienti da diverse università europee e ambiti progettuali. I due soci sono impegnati nella didattica come visiting professor e attualmente si occupano di seminari e conferenze presso le più prestigiose istituzioni in tutto il mondo (Harvard, Yale, UCLA, Cornell, Iberoamericana, RIBA, Copenaghen, Bergen, Monaco di Baviera, Parigi, Milano, Shanghai, Madrid, Buenos Aires, Santiago...), perseguendo azione urbana e di intervento presso gli ambienti più locali delle città in Europa, nelle Americhe e in Asia. Dalla sua fondazione Ecosistema Urbano è stato premiato a livello nazionale e internazionale in più di 40 occasioni.
Nel 2005 ha ricevuto l'European Acknowledgement Award della Holcim Foundation for Sustainable Construction (Ginevra, 2005). Nel 2006 gli è stato assegnato il premio della Architectural Association and Environments, Ecology and Sustainability Research Cluster. Nel 2007 è stato nominato per il premio dell'Unione Europea per l'architettura contemporanea Premio Mies van der Rohe "Emerging European Architect" e ha ricevuto il premio AR AWARD per l'architettura emergente a Londra, selezionato tra più di 400 studi provenienti da tutto il mondo. Nel 2008 Ecosistema urbano ha ricevuto il primo premio Award Next Generation dal Próxima Arquia Foundation e nel 2009 il Silver Award Europa dalla Holcim Foundation for Sustainable Construction, selezionato tra più di 500 designer.
Negli ultimi anni il lavoro di Ecosistema urbano è stato oggetto di attenzione da parte di più di 100 media della comunicazione (stampa nazionale e internazionale, programmi televisivi e pubblicazioni specializzate) provenienti da 30 paesi diversi e i progetti esposti in gallerie, musei e molteplici istituzioni.
Una selezione dei progetti di Ecosistema Urbano è stata esposta presso il Design Museum di Londra nell'ambito della mostra "Sustainable Futures", al Deutsches Architektur Zentrum di Berlino e al Pavillon de L'Arsenal di Parigi.
Tra i progetti più significativi: lo spazio interattivo pubblico per l'Expo di Shanghai 2010; il parco giochi sperimentale urbano di Dordrecht (Olanda); l'"Ecopolis Plaza", spazio pubblico nella periferia di Madrid, e il progetto "Dreamhamar" per la progettazione del centro urbano di Hamar in Norvegia attraverso un innovativo processo open source per favorire la partecipazione pubblica e la creatività collettiva.
© RIPRODUZIONE RISERVATA
pubblicato il: - ultimo aggiornamento:
